PLAN BARN 01
Information sur le produit
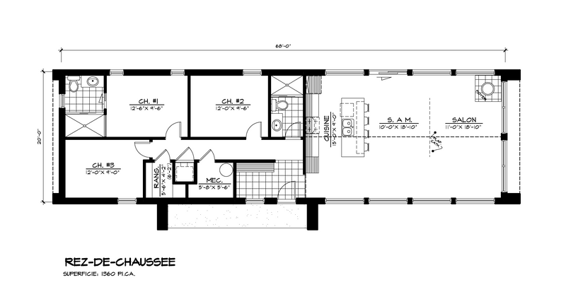
Ce nouveau plan est notre premier modèle de style Grange Zen. La maison s’étend sur toute la longueur avec un look contemporain épuré afin de vous offrir un espace parfaitement pensé. Toute l’espace de vie est fenêtrée et recouverte d’un plafond cathédral afin d’accentuer son effet de grandeur. L'autre moitié de la maison a des plafonds de 9 pieds et offre 3 chambres et 2 salles de bain, incluant une douche vitrée attenante à la chambre des maîtres. Un vrai coup de cœur... Cette construction est vraiment simple à bâtir et vous offre une belle opportunité de créer votre design personnalisé. Nous sommes très heureux de vous offrir ce plan prêt à être construit.
FAQs
Gallerie
© Tous droits réservés
© Tous droits réservés
© Tous droits réservés

